O projeto propõe resolver os impactos gerados pela influencia da nova estação de metrô prevista, Orfanato, visando valorizar o edifício patrimonial que se encontra na área, o prédio do antigo orfanato, propondo o adensamento da área, adequação de gride das vias para transporte publico e qualificação do espaço voltado ao pedestre.
Projeto Toca do Coelho
Esse projeto esta sendo feito de forma completa, desde a escolha do imóvel e financiamento, os projetos (arquitetônico, luminotécnico e decoração), planejamento de obra e custos até a execução.
Esse projeto esta sendo feito de forma completa, desde a escolha do imóvel e financiamento, os projetos (arquitetônico, luminotécnico e decoração), planejamento de obra e custos até a execução.
A execução do projeto foi feita durante a burocracia do financiamento até a entrega das chaves do imóvel, tendo algumas alterações apos esse período. como a obra foi dividida em etapas algumas alterações em etapas futuras não interferem no andamento da obra, de forma que traz uma maior liberdade de alterações projetuais do que o período de projeto oferecia. Os prazos foram determinados de acordo com a urgência em mudança, devido o custo de aluguem do imóvel anterior do cliente, e a disponibilidade de recursos para obra.O nome do projeto surgiu devido Por o cliente se chamar Ricardo Coelho e esse ser seu 1 imóvel próprio.
Memorial
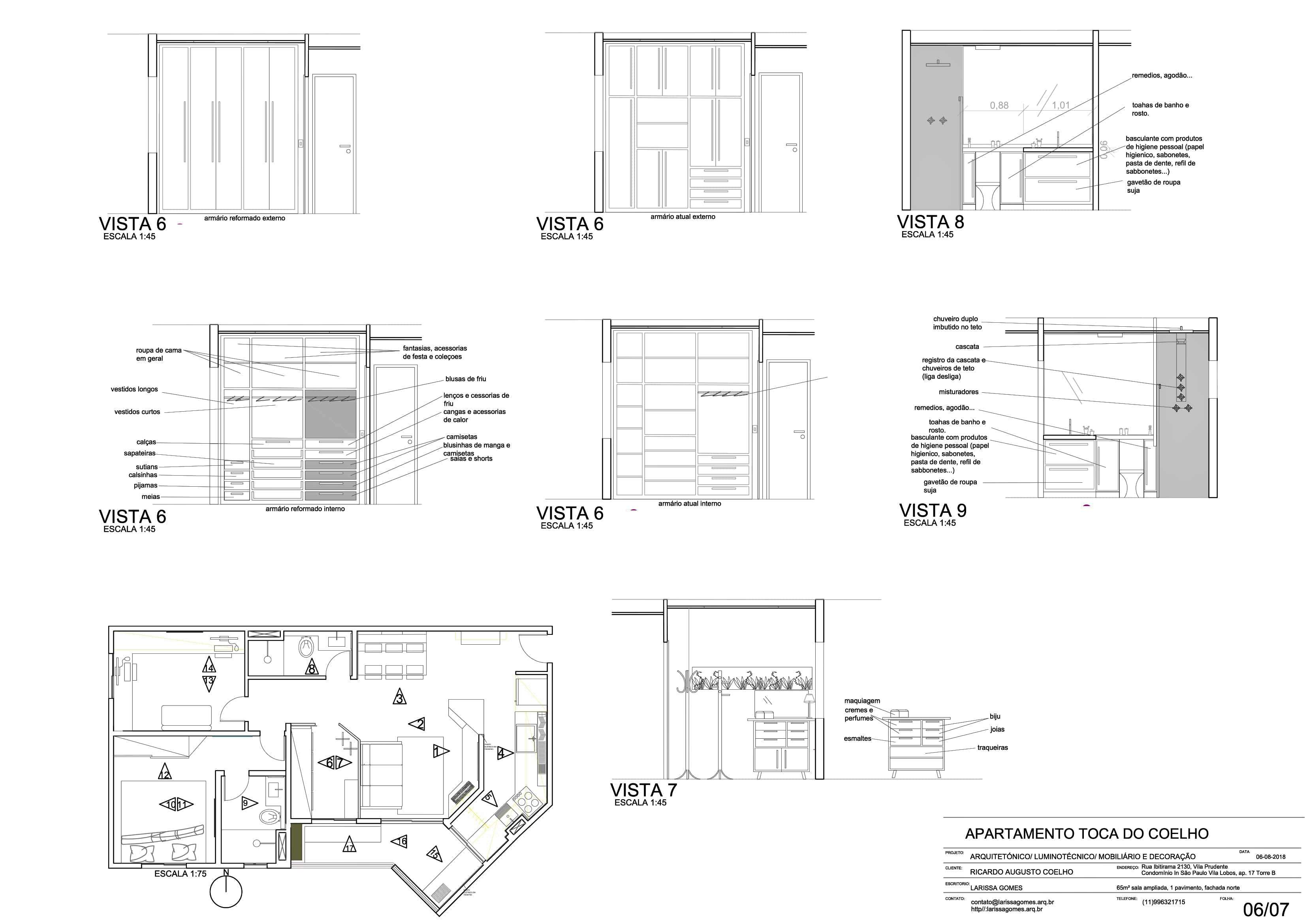
Esse projeto foi feito com muito carinho, visando o lar perfeito para seu dono, foi pensado de modo a atender as principais atividades e gosto do proprietário, tendo assim, a cozinha semi-integrada com a sala de jantar, que atende um maior número de pessoas para os dias de eventos gastronômicos, já que o proprietário tem interesse pela culinária e gosta de receber amigos, a sala ampla possui dimensões adequadas para jogar games e ver filmes, o escritório com grande bancada de trabalho para projetos de tecnologia, suíte voltada atividade de dormir, com uma grande cama e com a maior parte dos armários separado em um closet no qual possui área de armário para suprir a necessidade de duas pessoas.
Os ambientes foram pensados para serem frescos sem o uso de ar-condicionado, tendo ventiladores não só para prover o conforto térmico, mas também como elemento decorativo. As cores pensadas para os mobiliários são amarela e azul, cores antagônicas (uma quente e outro fria) de modo a trazer equilíbrio ao ambiente, alem de serem cores vibrantes, para trazer alegria ao local. O piso que imita o desenho de madeira e está presente em toda área interna do apartamento, traz o aconchego e conforto de um lar, sendo esse reforçado com a presença da lareira ecológica na sala.
As cores predominantes em cada ambiente são de acordo com o uso atribuídos a eles, sendo a cozinha voltado para o amarelo por ser a cor ligada a fome, e o azul na sala por ser a cor da serenidade e assim por diante. A varanda foi pensada para ter um ambiente de aconchego e socialização, assim nessa se encontra um grande banco próximo a um jardim vertical com hortaliças para serem usadas na cozinha.
Com isso, esse projeto é a junção de elementos para trazer funcionalidade e conforto para o apartamento na tentativa de transformá-lo na “Toquinha perfeita para um Coelho”.