Esse projeto constitui em uma simulação de trabalho de curadoria das obras de do artista Cildo Meireles na área de exposição Oca no Ibirapuera do arquiteto Oscar Niemeyer.
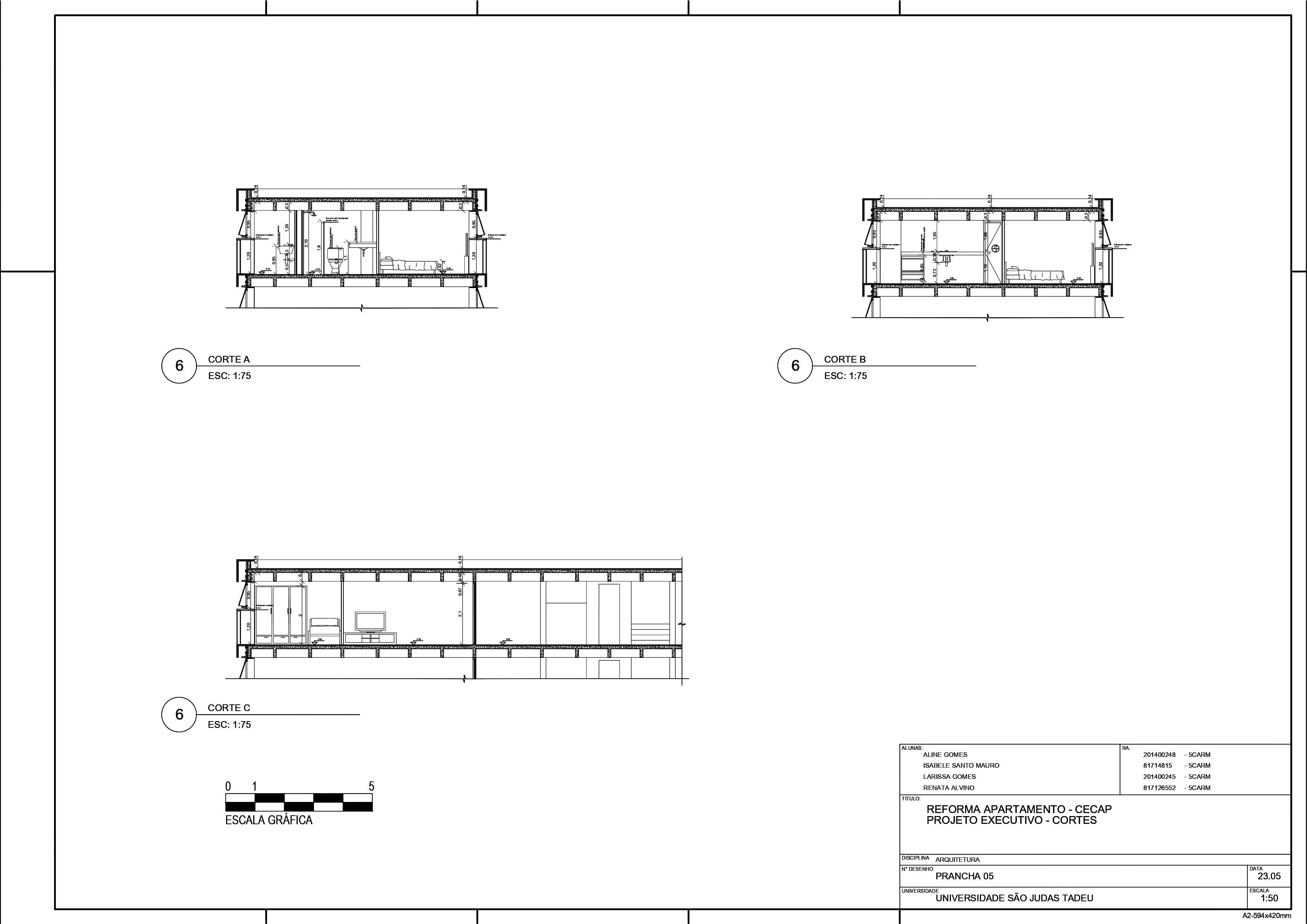
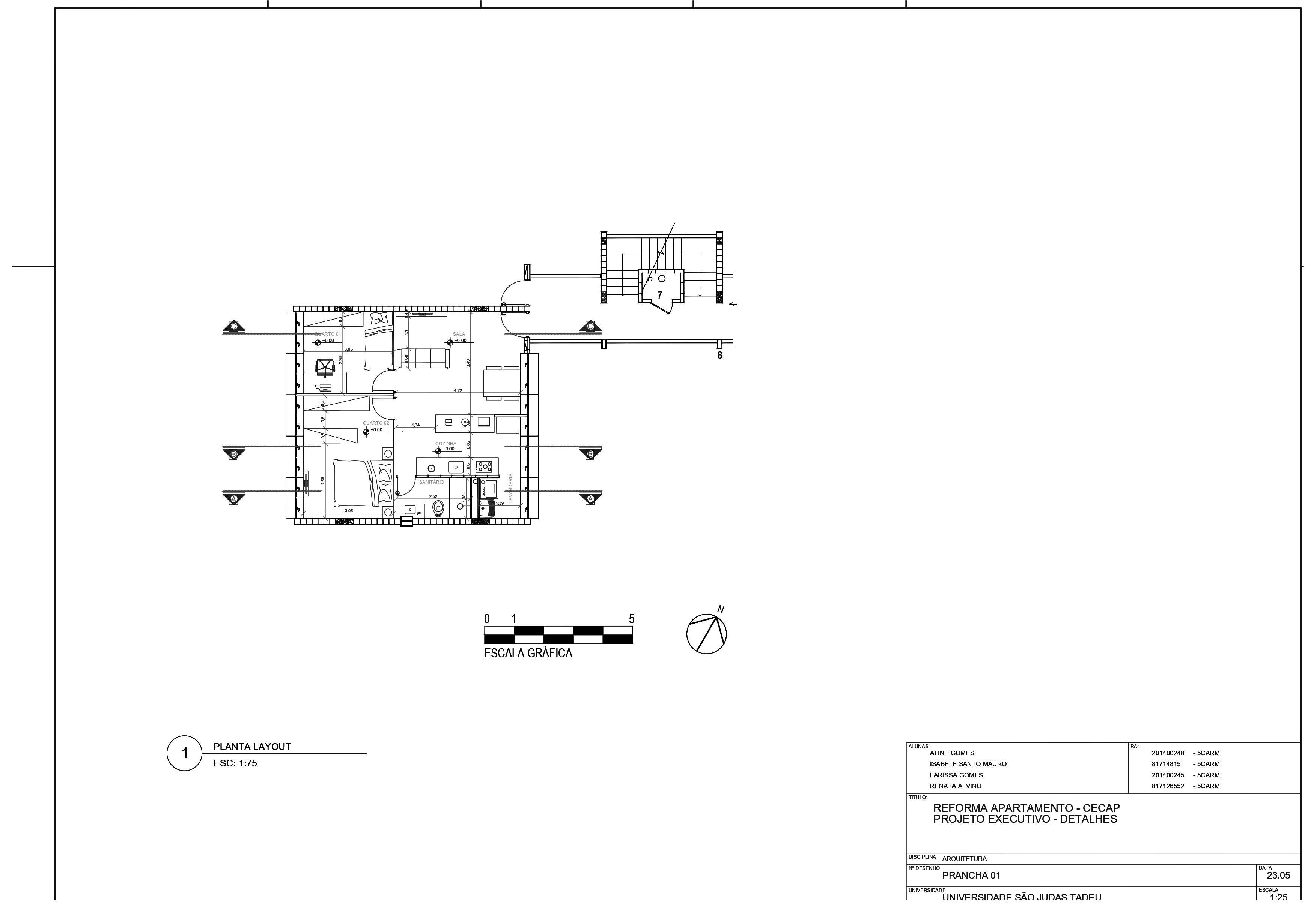
Projeto Executivo – Reforma de Apartamento CECAP
O programa desta reforma se lastreia nas necessidades de um casal (em situação de recém-casados) que, com a perspectiva de ter um filho, requerem um quarto em separado – além do de casal – e grandes áreas de armários, por conta do alto volume de objetos. Desse modo, foram propostos dois grandes armários no quarto do casal, com espaço delimitado e particular para este uso, bem como um outro ambiente equiparado para o pequeno futuro morador.
MEMORIAL DESCRITIVO
REFORMA DE APARTAMENTO – CECAP
O programa desta reforma se lastreia nas necessidades de um casal (em situação de recém-casados) que, com a perspectiva de ter um filho, requerem um quarto em separado – além do de casal – e grandes áreas de armários, por conta do alto volume de objetos. Desse modo, foram propostos dois grandes armários no quarto do casal, com espaço delimitado e particular para este uso, bem como um outro ambiente equiparado para o pequeno futuro morador.
A sala e cozinha se integram, diferentemente da antiga configuração do espaço – tipologia mais tradicional que divide tais ambientes –, com uma proposta de viés um pouco mais contemporânea e jovial, possibilitando o casal de continuar recebendo seus amigos, agora com melhor agregação.No ambiente de estar, que atende também à uma área de lazer, foi sugerido um rack com capacidade para instalação de diversos equipamentos eletrônicos e multimídia.
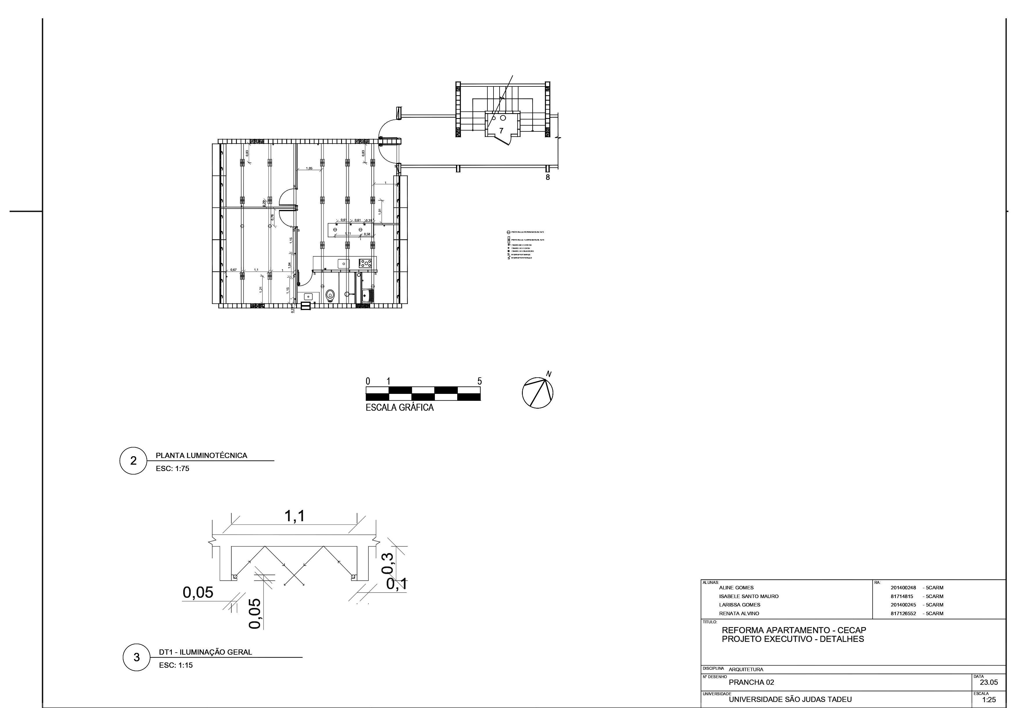
A iluminação alvitrada foi a de modelo que reflete no teto, evitando a reflexão de luz direta nos ambientes – o pé-direito da edificação (existente e imutável) não é muito alto, portanto a instalação de um forro deixaria o ambiente muito enclausurado e menos iluminado naturalmente; assim o sistema de iluminação proposto diretamente na laje nervurada, de forma externa e com esse tipo de reflexão, geram uma ampliação nos espaços.
A reforma traria ao jovem casal um espaço renovado e moderno, portanto a escolha dos materiais também foi primordial.
Para combinar com a laje e vigas em concreto aparente, foi selecionado um piso cimentado nas áreas em comum da residência, ou seja, o ambiente integrado – sala/cozinha. Uma das vantagens é a fácil manutenção e limpeza, além da cor neutra que aumenta as possibilidades na decoração. Os pisos dos quartos foram propostos através de uma categoria “mais aconchegante”, com maior comodidade e conforto – o laminado possui uma tonalidade suave e amadeirada, transmitindo tais características, mais adequadas à ambientes íntimos e de descanso feito o quarto. Já o piso do banheiro e lavanderia, em porcelanato, são próprios para áreas molhadas e de intenso uso de produtos químicos.
A simplicidade e baixo custo se ampliam para as paredes: é sugerido para praticamente todas serem pintadas na cor fosca Branco Gelo (exceto nas áreas molhadas que carecem de uma pintura específica, de tipo epóxi, por seu alto desempenho anti-mofo). A aplicação de pastilhas de vidro, dando um toque final na decoração, também se destina às áreas molhadas da cozinha e banheiro.
Ainda em uma proposta simples, o rodapé dos espaços dos quartos é de tipo poliesterino branco, ampliando a sensação de conforto. Sala e cozinha, dispostas de um piso cimentado, dispensam rodapés para uma combinar com o estilo industrial. Já no sanitário e na lavanderia, o rodapé não se difere dos pisos escolhidos (porcelanato), para não destoar e por ser mais adequado.